
HD Jenis Eropa Hoist Listrik Single-girder Overhead Crane
Overhead Crane Girder Tunggal Eropa adalah mesin pengangkat kompak yang dirancang dan diproduksi sesuai ketat dengan standar FEM dan DIN, yang dengan teknologi canggih dan desain yang indah. Dibagi menjadi tipe umum dan tipe suspensi, mendukung penggunaan kerekan listrik standar Eropa, cocok untuk lokakarya dan penanganan material gudang, perakitan komponen presisi besar dan tempat-tempat lain.
HD Jenis Eropa Hoist Listrik Single-girder Overhead Crane
Deskripsi singkat:
Overhead Crane Girder Tunggal Eropa adalah mesin pengangkat kompak yang dirancang dan diproduksi sesuai ketat dengan standar FEM dan DIN, yang dengan teknologi canggih dan desain yang indah. Dibagi menjadi tipe umum dan tipe suspensi, mendukung penggunaan kerekan listrik standar Eropa, cocok untuk lokakarya dan penanganan material gudang, perakitan komponen presisi besar dan tempat-tempat lain.

Itu bisa banyak digunakan dalam pembuatan mesin, metalurgi, minyak bumi, membatu, pelabuhan, kereta api, penerbangan sipil, makanan, pembuatan kertas, konstruksi, bengkel industri elektronik, gudang dan situasi penanganan material lainnya, khususnya. diterapkan untuk penanganan material yang membutuhkan posisi yang tepat, komponen besar situasi perakitan yang tepat.

Gambar Rinci:

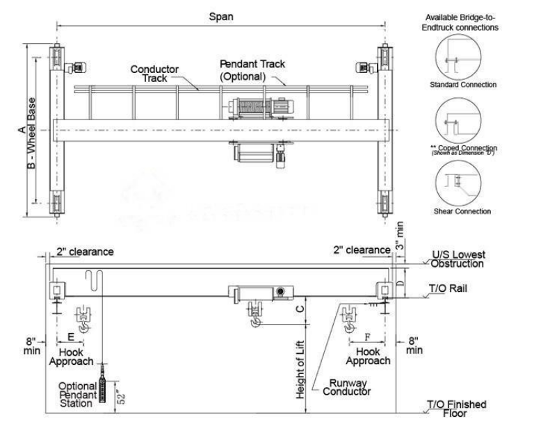
Sketsa Gambar:

Parameter teknik:
Menjangkau | m | 7,5 | 10,5 | 13,5 | 16,5 | 19,5 | 22,5 | 25,5 |
Kapasitas | t | 1 ~ 12.5t | ||||||
Berat keseluruhan | kg | 1781 ~ 12086 | ||||||
Berat troli | kg | 405 ~ 740 | ||||||
Max. Beban roda | kn | 13,5 ~ 90,94 | ||||||
Travel rail | P24 ~ P43 | |||||||
Kecepatan mengangkat | m / mnt | 0,8 / 5 | 0,8 / 5 | 0,8 / 5 | 0,8 / 5 | 0,8 / 5 | 0,8 / 5 | 0,8 / 5 |
Mengangkat tinggi | m | ≥ 6 | ≥ 6 | ≥ 6 | ≥ 6 | ≥ 6 | ≥ 6 | ≥ 6 |
Total daya motor | kw | 4.31 | 4.31 | 4.31 | 4.31 | 4.67 | 4.67 | 4.67 |
Kecepatan derek | m / mnt | 3-30 | 3-30 | 3-30 | 3-30 | 3-30 | 3-30 | 3-30 |
Kecepatan troli | m / mnt | 2-20 | 2-20 | 2-20 | 2-20 | 2-20 | 2-20 | 2-20 |
Tugas kerja | M5 / A5 | |||||||


English
Latviešu
Português
Bai Miaowen
hrvatski
ไทย
Français
Español
suomi
bosanski
русский
Svenska





