
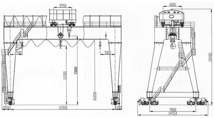
Crane Angkat Berat, Double Beam Gantry Crane 30 Ton
Double beam gantry crane dengan hook diterapkan di luar gudang atau kereta api ke samping untuk melakukan pekerjaan mengangkat dan menurunkan umum. Crane jenis ini terdiri dari jembatan, kaki penopang, organ penjelajah derek, troli dengan winch pengangkat kuat, peralatan listrik dan sistem kontrol. Seperti desain tugas berat, dapat digunakan secara luas di semua jenis bidang industri.
derek angkat berat, balok ganda gantry crane 30 ton
Double beam gantry crane dengan hook diterapkan di luar gudang atau kereta api ke samping untuk melakukan pekerjaan mengangkat dan menurunkan umum. Crane jenis ini terdiri dari jembatan, kaki penopang, organ penjelajah derek, troli dengan winch pengangkat kuat, peralatan listrik dan sistem kontrol. Seperti desain tugas berat, dapat digunakan secara luas di semua jenis bidang industri.






English
Latviešu
Português
Bai Miaowen
hrvatski
ไทย
Français
Español
suomi
bosanski
русский
Svenska





